即刻App年轻人的同好社区
下载
App内打开
好好住家居研究院
3年前
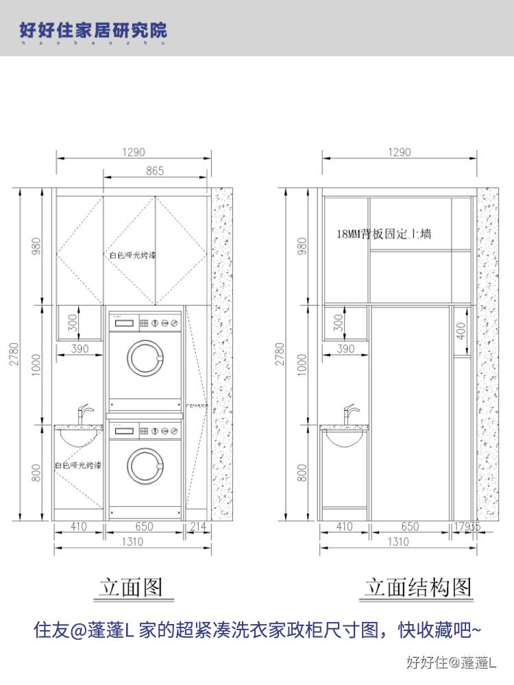
全能家政柜设计方案,有图有尺寸可照搬

#定制柜怎么设计更好用 越来越多的住友开始在装修时规划一块专门的空间,用于收纳、管理家中的清洁用品,以及进行一些家务清洁活动。当面积不足以规划家务间时,定制、或者利用成品家具改造一个家政柜(家务柜),也是非常好的选择。

做家政柜的好处:
1. 让杂乱的家务用品「眼不见为净」。
2. 集中存放家务用品和囤货,更易于管理。
3. 在有管道、梁、柱等缺陷的空间定制家政柜,可以将这些异形空间化零为整,改善观感。
4. 将洗衣机、拖地机等需要上下水的设备集中在一处,使用更方便也更安心。

做家政柜要注意:
1. 按照常用物品规划尺寸,给长杆工具留出足够高度。
2. 内部采用搁板、货架、洞洞板等开放式收纳,一目了然。
3. 为吸尘器、扫地机器人等在合适的位置安装插座,确保使用时电量充足。
4. 如果家政柜与洗衣区一同规划,则要做好上下水规划与防水处理,同时别忘了给衣架和脏衣篮留出位置。

家居研究院为大家整理了 4 种家政柜设计方案,从小巧紧凑型到终极全能型,附上Tips 与尺寸图,值得收藏哦~

图片来源:好好住住友©高地立耳猫 ©蓬蓬L ©RsYard缪茹空间设计 ©米苏Ariel
08

来自圈子

圈子图片

家居生活指南

100万+人已经加入